図面-46
Back
Next
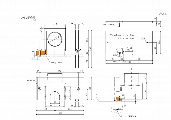
これまでに作成した数々の作品の図面です。図か名称をクリックすると大きな図面を見ることが出来ます。また、"製作ページに移動"をクリックすると製作工程を確認できます。皆様の自己責任でお使いください。
ボール盤用クランプ
"製作ページに移動"
アラレ組治具
"製作ページに移動"
[Home]